3-Weg Kompaktlautsprecher
Bestückung: 25cm PHL Bass B25-3002 (Klang + Ton Test) mit Papiermembran, PHL Koaxiallautsprecher X17-1240TWX (Klang + Ton Test Teil 1, Teil 2)
Gehäuse: Bassreflexgehäuse mit 39l Netto für den Bass und geschlossenem 7,5l für den Koax.
Technische Daten:
Wirkungsgrad: ca. 90dB/W/m
Frequenzbereich: 40-20.000Hz
Impedanz: 8 Ohm
Belastbarkeit: 200W

Prinzip
Point „P“ ist ein 3-Wege Lautsprecher, der im Mittel-Hochtonteil über
ein PHL Koaxial-Chassis mit
Philosophie
Der
Vorteile
Bei herkömmlichen Lautsprechern mit räumlich getrenntem Tief-Mittel-
und Hochtöner sind die Schallentstehungsorte konstruktionsbedingt im
günstigsten Fall
Dass der Tieftöner der Point „P“ räumlich getrennt vom Koaxial-Chassis ist, hat keine nennenswerten Auswirkungen, da das Ohr in diesem Frequenzbereich wesentlich unempfindlicher ist.
Der zweite ausschlaggebende Punkt zur Verwendung eines koaxialen Systems ist der, dass egal in welcher Position der Hörer sich befindet, der Schall immer die gleiche Strecke zurücklegt. Interferenzen im Übergangsbereich zwischen Mittel- und Hochtöner können gar nicht erst entstehen.

Weiterhin wird durch die Entlastung des Mittel-Hochtonbereichs von tiefen Tönen die Modulation der hohen Töne vermieden. Eine Modulation entsteht dann, wenn eine Frequenz mit einer Zweiten überlagert wird. So z.B. bei hohen Lautstärken, bei denen die Tief-Mitteltönermembran hohe Auslenkungen macht. Die Schallwellen des Hochtöners erfahren durch die sich bewegende Umgebung um ihn herum eine Frequenzmodulation. Das heißt die hohen Frequenzen werden gestaucht bzw. gedehnt. Diese solche Modulation führt zu einer rau wirkenden Wiedergabe von hohen Tönen.
Frequenzweiche der Point "P"

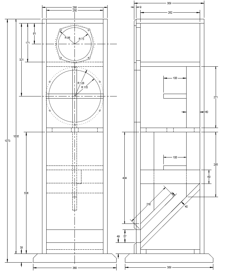
Gehäuseplan
Der Plan kann natürlich nach eigenen Vorstellungen abgeändert
werde. Es sollte dabei aber die Schallwandbreite im Bereich des
Koaxialtreibers beibehalten werden. Änderungen von 2cm sind aber nicht
tragisch.
Der Bass muss auf der Front bleiben, er kann nicht auf die Seite
versetzt werden. Er arbeitet bis 200Hz und würde sich an dieser
Position nicht mehr korrekt ins Klangbild einfügen.
Ebenso ist ein Standgehäuse möglich, Das Innenvolumen kann bis auf
maximal 50l vergrößert werden, die Gehäusetiefe kann etwas schrumpfen.
Der restliche noch verbleibende Hohlraum im Fuß kann aus Behausung für
die Frequenzweiche dienen.


| Seitenanfang |
Letzte Aktualisierung 13.11.2006
Durch Dieter Achenbach